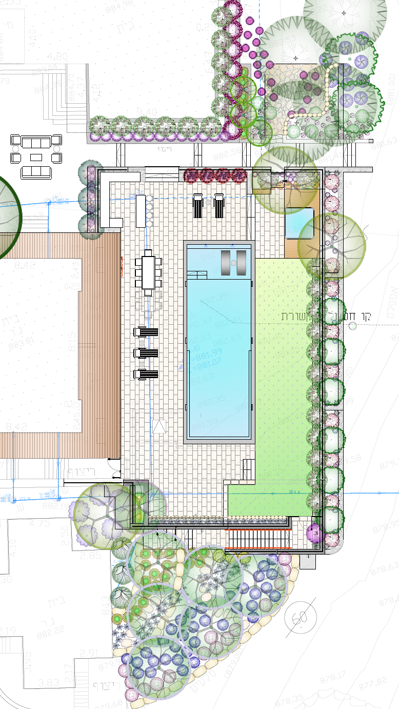
גן על הר כנען
אדריכלות נוף, ניהול פרויקט והקמה: גרדניה אור פרויקטים
מיקום: צפת, גליל עליון
גודל השטח: 1,500 מ"ר
גובה מעל פני הים: 950 מ'
הפרשי גובה בשטח: כ 5 מ'
שנת תכנון והקמה : 2022-2024
יזם: רוגובין
- הגן בתהליך הקמה

אדריכלות נוף, ניהול פרויקט והקמה: גרדניה אור פרויקטים
מיקום: צפת, גליל עליון
גודל השטח: 1,500 מ"ר
גובה מעל פני הים: 950 מ'
הפרשי גובה בשטח: כ 5 מ'
שנת תכנון והקמה : 2022-2024
יזם: רוגובין
